Safety Eligibility Letter SS-135
|   |   | 

400 Seventh St., S.W.
May 7, 2007
Washington, DC 20590
In Reply Refer To: HSSD/SS-135
Mr. Ted Graef, President All Traffic Solutions
P.O. Box 10085 State College, PA 16805
Dear Mr. Graef:
Thank you for your letter of December 12, 2005, requesting the Federal Highway Administration's (FHWA) acceptance of your company's SPEEDsentry, SS12 and SS15, Radar Speed Displays mounted to a breakaway pole with a slip base as a crashworthy sign support system for use on the National Highway System (NHS). Accompanying your letter was a drawing of the system, system specifications with calculations, and reference to generic crash tests of similar devices. You requested that we find the SPEEDsentry systems acceptable for use on the NHS under the provisions of the National Cooperative Highway Research Program (NCHRP) Report 350 "Recommended Procedures for the Safety Performance Evaluation of Highway Features."
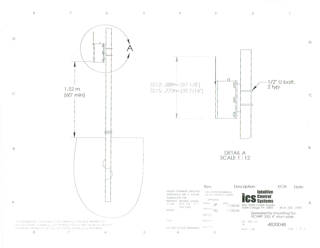
The SPEEDsentry 12 or SS12, is a radar speed display with 12 inch digit height, and the SS15 displays a 15 inch digit height. Both models are constructed of aluminum with a Lexan shield on the front. The SS12 weighs 32 pounds and the SS15 weighs 41.2 pounds with the "YOUR SPEED" display and without the battery. Each unit uses a standard 26Ah sealed battery, which weights 21 pounds for a total weight of 51 pounds and 62.2 pounds respectively. Each radar speed display is attached to a 4-inch diameter pole and the bottom of the unit is mounted at least 60 inches from the ground using 1/2 inch diameter U bolts as shown in the enclosed drawing.
You referenced two FHWA Acceptance Letters, SS-84, dated July 26, 1999, and SS-121, dated December 30, 2003, in which motorist aid call boxes were tested on poles mounted on 4-bolt slip bases. The call boxes were of weights comparable to the SPEEDsentry devices but mounted closer to the ground, near windshield height. In these test programs the occupant impact speeds and decelerations were well within limits, as was occupant compartment deformation (roof crush.) However, in SS-84 the callboxes were mounted on the side of the support post and in SS-121 they were located on the backside of the post. The SPEEDsentry sign units must, of course, be mounted on the post facing oncoming traffic and are therefore more likely to break free from the support post upon impact. The calculations sheet enclosed shows the strength of the bolts is adequate to absorb the anticipated impact.
Based on the results of your calculations and the previous testing referenced above, the SPEEDsentry installations are comparable and likely to meet the breakaway criteria under the NCHRP Report 350. Therefore, the devices described above and shown in the enclosed drawings for reference are acceptable for use as test level 3 devices on the NHS under the range of conditions tested, when proposed by a State. This acceptance will be limited to a generic four-bolt slip base or a comparable base using crashworthy frangible couplings.

Please note the following standard provisions that apply to the FHWA letters of acceptance:
- Our acceptance is limited to the crashworthiness characteristics of the devices and does not cover their structural features, nor conformity with the Manual on Uniform Traffic Control Devices.
- Any changes that may adversely influence the crashworthiness of the device will require a new acceptance letter.
- Should the FHWA discover that the qualification testing was flawed, that in-service performance reveals unacceptable safety problems, or that the device being marketed is significantly different from the version that was crash tested, it reserves the right to modify or revoke its acceptance.
- You will be expected to supply potential users with sufficient information on design and installation requirements to ensure proper performance.
- You will be expected to certify to potential users that the hardware furnished has essentially the same chemistry, mechanical properties, and geometry as that submitted for acceptance, and that they will meet the crashworthiness requirements of the FHWA and the NCHRP Report 350.
- To prevent misunderstanding by others, this letter of acceptance, designated as number SS-135, shall not be reproduced except in full. As this letter and the supporting documentation which support it become public information, it will be available for inspection at our office by interested parties.
- The SPEEDsentry speed displays are patented devices and considered "proprietary."  When proprietary devices are specified by a highway agency for use on Federal-aid projects they:
	- must be supplied through competitive bidding with equally suitable unpatented items;
- the highway agency must certify that they are essential for synchronization with existing highway facilities or that no equally suitable alternative exists or;
- (c) they must be used for research or for a distinctive type of construction on relatively short sections of road for experimental purposes. Our regulations concerning proprietary products are contained in Title 23, Code of Federal Regulations, Section 635.411, a copy of which is enclosed.
 
- This acceptance letter shall not be construed as authorization or consent by the FHWA to use, manufacture, or sell any patented device for which the applicant is not the patent holder. The acceptance letter is limited to the crashworthiness characteristics of the candidate device, and the FHWA is neither prepared nor required to become involved in issues concerning patent law. Patent issues, if any, are to be resolved by the applicant.

Enclosures




